Schatzkammer in Vreden
Projektdaten:
Wettbewerb: 2013
BGF: 6.300m²
BRI: 25.920m³
NF: 5.035m²
LP: WBW, 2. Rundgang
Kosten: 10 Mio (300+400)
Koorperation mit Ortner & Ortner
Kulturhistorisches Zentrum Westmünsterland
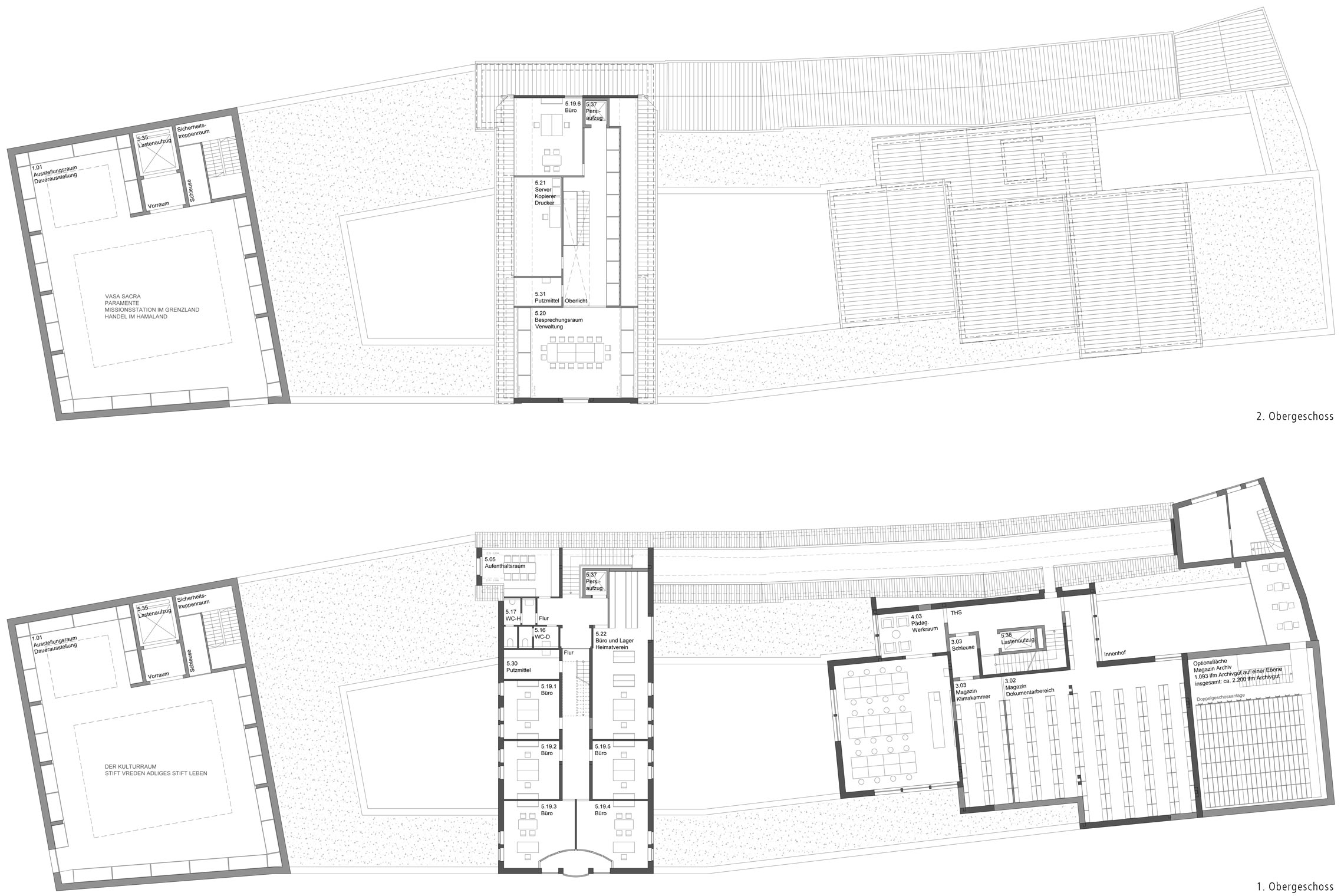
Kulturhistorisches Zentrum in Vreden - An prominenter Stelle in Vreden zeigt sich die Schatzkammer als hohes Haus. Sie bildet mit den zwei Kirchen St. Felicitas und St. Georg einen weit sichtbaren Dreiklang an der neuen Kulturachse. Innerhalb der ehemaligen Stiftsimmunität verkörpert das Kulturquartier einen zeitgemäßen Gegenpol zu den kirchlichen Bauten. Die Schatzkammer des Quartiers ist aus heimischem Oberkirchner Sandstein gebaut und ergänzt die Baufluchten und Raumkanten. In ihrem Innern bekleiden hölzerne Glasvitrinen die Wände. In einer atmosphärischen "Wunderkammer" präsentiert sich das historische Gedächtnis als Dauerausstellung. Gezielt gesetzte Ausblicke in den stützenfreien Ausstellungssälen stehen im Dialog mit der Umgebung. Ein Blick über die Berkelaue, zu den Kirchen und in die drei Innenhöfe der Anlage eröffnet sich den Besuchern auf dem Weg durch das Haus. Die Lampensammlung des Dr. TouchÈ bildet den Abschluss des Museumsrundgangs. Ein illuminiertes "Schaufenster", bestehend aus 3500 kleinen Öllampen in verglasten Regalen, wird zum neuen Anziehungspunkt. Der dortige Ausblick von der offenen Loggia über die Kulturachse bis hin zum Stadtkern bildet einen prägnanten Abschluss. Der Pulverturm, das Armenhaus und die vorhandene Altbausubstanz werden behutsam für die Nutzungen des Forschungs- und Lernbereiches erweitert. Neue Wege verbinden die vorhandenen Baukörper. Es entsteht eine überraschende Raumabfolge, die durch drei Innenhöfe akzentuiert wird. Das Vestibül im Eingangsbereich, ein Skulpturenhof mit Lesebereichen und der Hof der Relikte am Pulverturm mit geplantem Archivmagazin schaffen eine kleinteilige Arbeitsatmosphäre. Kontemplative Rückzugsorte, die Raum für geistige Arbeit schaffen, entstehen. Eine behagliche Umgebung, die den direkten Umgang mit den historischen Objekten selbstverständlicher macht.
Planmaterial: Weitkamp + Partner mit Ortner & Ortner
